EPIC Nosara

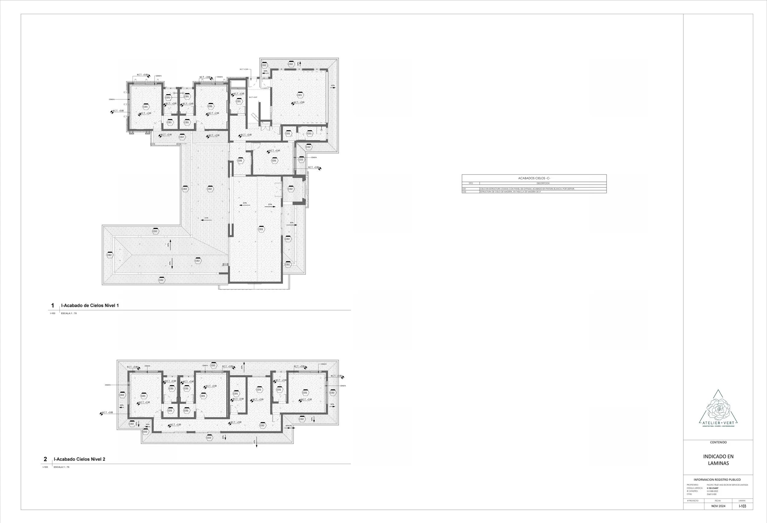
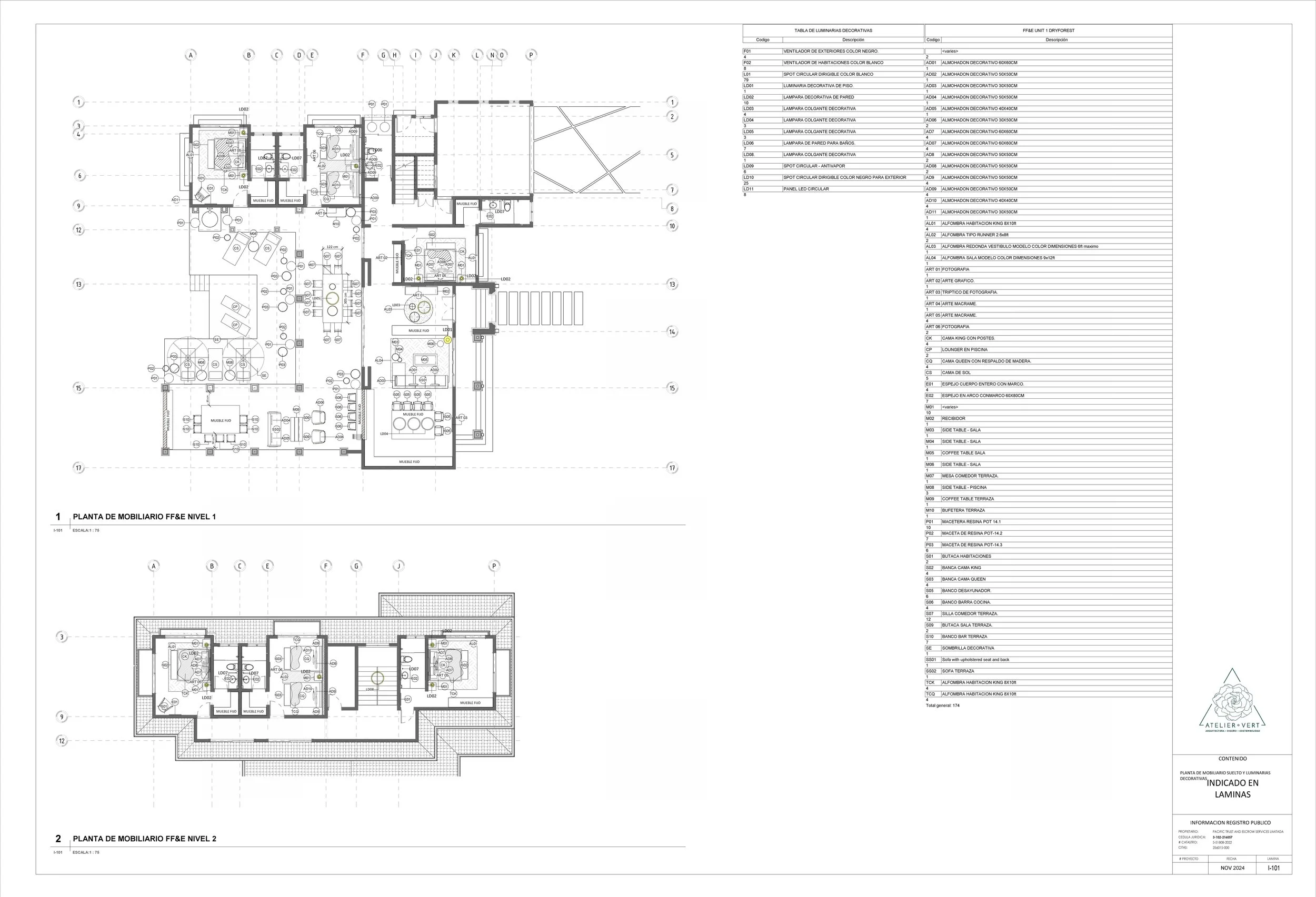
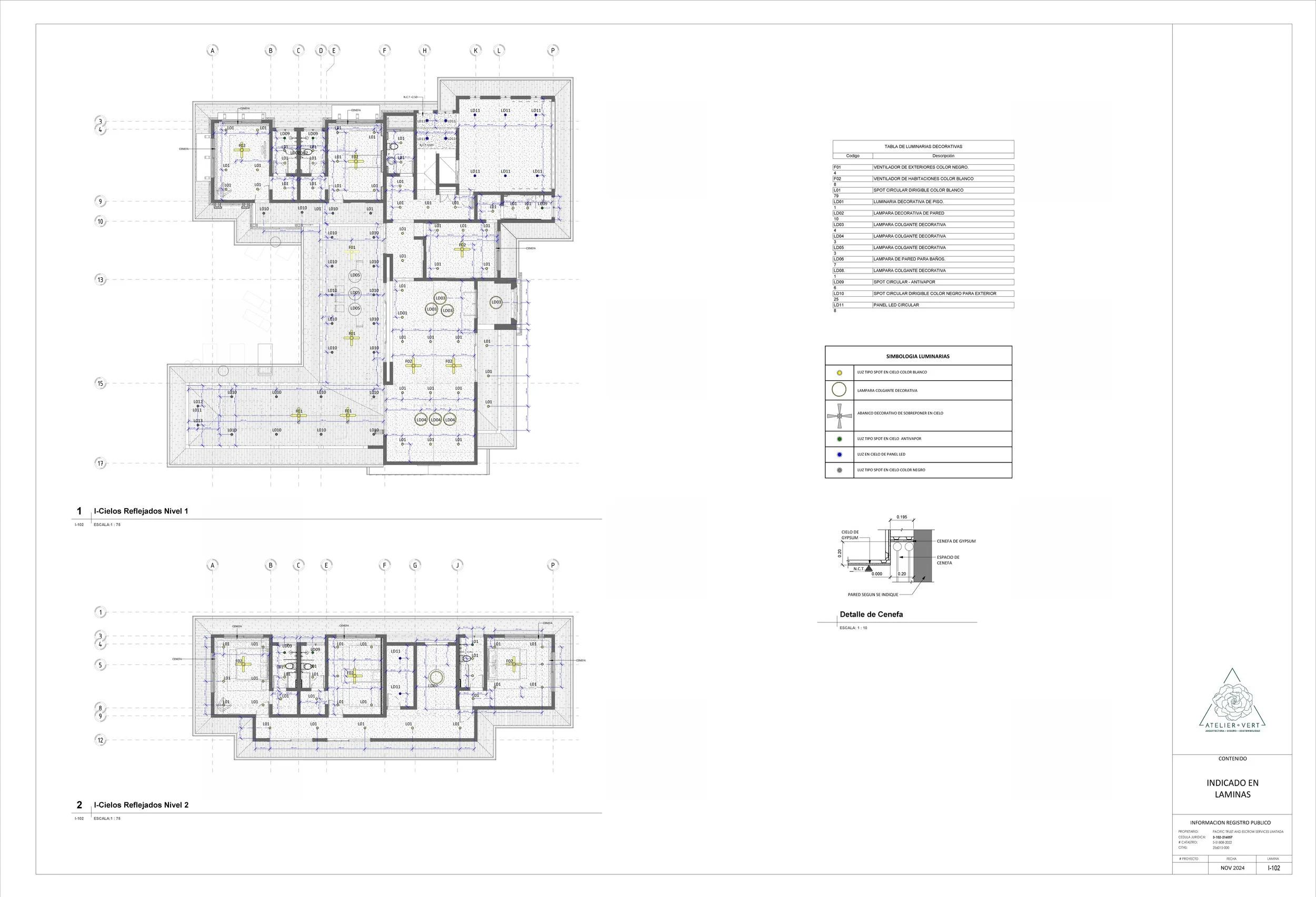
En este proyecto, realizamos la colaboración en los planos de interiorismo mediante la implementación de la metodología BIM (Building Information Modeling) permitió una coordinación integral entre las distintas disciplinas involucradas. A través de un modelo digital compartido, arquitectos, diseñadores de interiores e ingenieros trabajaron de manera simultánea, optimizando la toma de decisiones y reduciendo interferencias entre sistemas constructivos y elementos de diseño. Esta metodología facilitó la visualización tridimensional de los espacios, asegurando coherencia entre la propuesta estética y las soluciones técnicas, además de mejorar la precisión en la documentación y cuantificación de materiales. Como resultado, se logró un proceso más eficiente, con mayor control sobre tiempos, costos y calidad en la ejecución del proyecto de interiorismo.

Dirección Creativa Interiorismo: Atelier Vert / Diseño: Arq. Michelle Broutin / Desarrollo de planos: BIM - Lab / Año: 2025

Siguiente
Siguiente

Casa Innovo - Estructural